2021-12-27
3590

城市,是文明最高的舞台,从初来乍到,到扎根栖息;从事业追逐,到家庭追梦;汇聚了无数关于青春的梦想。
什么样的房子,才能承载青年对于家的想象?兴达集团,30载品质探索多元化居住、办公需求,以时代为风口,以城市革新为己任,倾力打造兴达东都时代项目,以一座万享梦想生活体,礼献而来。
更新与拓新,是一座城市保持蓬勃生命力的内核,也是进取国际化城市的必修课题。国家政策风口之下,北京市级行政中心迁入通州副中心,“四统一”规划政策持续推进,与通州一河之隔的燕郊,盛迎时代风口,全面开启新北京时代主场,全力打造科技之城、创新之城、产业之城。迎来跨越发展的“高光时代”。
地铁、城铁、高速、跨河大桥、医疗、教育,越来越多的京标服务提升燕郊城市发展;燕郊国家高新区、燕郊北部科学城等规划建设,燕郊不断迭代升级,据公开数据汇总,兴远高科产业园、全景产业园、中南高科产业园、中冶总部基地、超星数字产业园、有研稀土总部基地、新宜智慧产业园等等,已有超千家名企落户。燕郊北部科学城,成为承接央企,京企外溢的首选地;
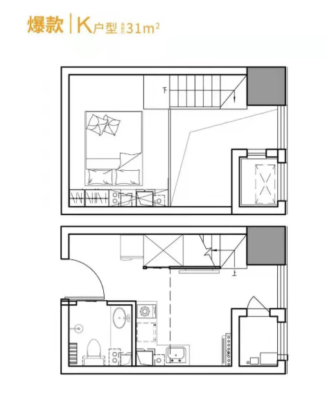
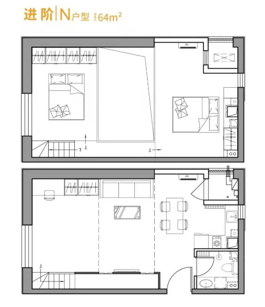
兴达东都时代规划约13万方万享梦想生活体,是青年潮流地、时尚聚集场、潮流风向标,时代创造一切,我们在这里创造时代。
这里是青年速度的主场,紧邻北京地铁22号线高楼站,京秦京平高速,畅达北京城区和周边旅游景区;
这里是青年繁华的主场:植物园,滨河森林体育公园、航天主题乐园、高尔夫俱乐部等休闲地尽善尽美。新世界百货、沃尔玛、永旺商场、富地广场等十余座商圈,潮流所需应有尽有。
于繁华的燕郊新城核芯开辟一方时代青年主场,兴达东都时代,以高度的革新责任献礼城市,突破空间现有状态,向更好的标准追求致意。于此,呈现一场时代与城市、分享与共进的理想碰撞,于此,启鉴下一个时代,共赴城市未来。















